COMO
203
4
3
40
169.900€
Стоимость в комплектации "Теплый контур"
Понравился этот дом? Давайте обсудим детали.
Ответим на вопросы и расскажем, как проходит строительство.
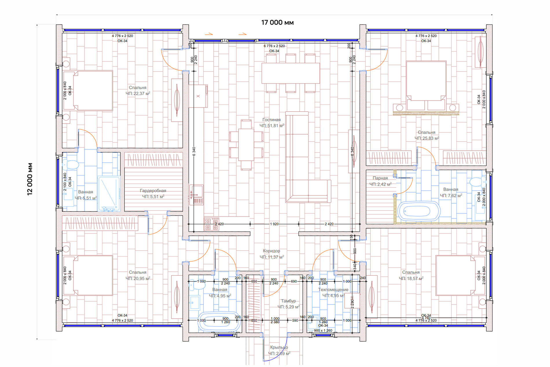
Этот современный дом площадью 203 м² сочетает в себе минималистичную архитектуру и продуманную функциональность. Плоская кровля и панорамное остекление придают зданию выразительный внешний вид, наполняя внутренние пространства естественным светом и создавая ощущение единства с окружающей средой. Центральный модуль с высотой потолков 4 метра формирует эффектный объем и усиливает ощущение простора.
Внутреннее пространство организовано вокруг большой гостиной, которая становится сердцем дома - идеальным местом для отдыха и приема гостей. Дом включает четыре спальни, среди которых выделяется комфортная мастер-спальня с приватной атмосферой. Дополнительно предусмотрена небольшая спальня, подходящая для гостей или кабинета, а также три современных санузла.
Особое внимание уделено комфорту и деталям: в доме есть мини-сауна для расслабления и восстановления, а высота потолков в остальных помещениях составляет 3 метра, создавая баланс уюта и простора. Этот проект идеально подходит для тех, кто ценит современный стиль, функциональность и светлые открытые пространства.
203
4
3
40
Хотите изменить планировку под себя? Это просто!
Мы внимательно изучим ваши задачи и на их основе разработаем индивидуальное планировочное решение, учитывающее ваш образ жизни и эстетику пространства.
Что входит в стоимость?
Архитектурный проект — это комплект документов, который определяет внешний вид дома, планировочные решения и основные архитектурные параметры будущего здания. Он создаётся на основе пожеланий заказчика и архитектурных норм.
В состав архитектурного проекта входит:
1. Общие данные
- основные параметры, высоты, площади;
- материалы дома и основные конструктивные решения.
2. Планы этажей
- все помещения с размерами;
- привязка внутренних перегородок;
- указание окон, дверей, лестниц, несущих стен.
3. Фасады дома
- все 4 фасада;
- высотные отметки;
- внешний вид будущего дома.
4. План кровли
- расположение скатов;
- уклоны, узлы примыканий;
- водосточная система.
5. 3D-визуализация — внешний вид дома в объёме.
Сборочный чертеж — этотехнический комплект чертежей для изготовления и монтажа деревянногодомокомплекта из клеёного бруса. Это раздел проекта, который определяет, изкаких элементов собирается дом и как он будет смонтирован.
В состав данного проектного раздела (конструкциидеревянные) входит:
1. Стеновой комплект
- Общие указания по сборке конструкций из клеёного бруса;
- Изометрические виды (3D-виды сборки стен);
- Планы этажей с привязкой стен и размерами всех элементов;
- План нулевого венца;
- Планы балок перекрытий по всем уровням;
- Монтажные схемы балок, узлов и элементов силового каркаса;
- Развёртки стен с обозначением каждого бруса и всех стыков.
2. Комплект узлов
- Узлы соединения бруса;
- Примыкания перекрытий, стен, кровли;
- Узлы примыкания окон и дверей.
3. Раскрой балок и клеёных элементов
- спецификация всех балок;
- длина, сечения;
- сверловка, выборки, чаши, соединения.
4. Детальная раскладка материалов (разбрусовка)
- полный список всех элементов домокомплекта;
- маркировка каждого бруса;
- ведомость пиломатериалов;
- количество и размеры элементов;
- схемы сборки по венцам.
Наш клееный брус — это высокотехнологичный материал премиального класса, используемый для строительства, где важны прочность, долговечность и эстетика.
Базовое сечение: 200×292 мм (стеновой брус премиум-класса).
Возможность увеличения толщины бруса до 320 мм, высоты до 392 мм.
Склейка элементов экологичным клеем, который применяется для изготовления детских деревянных игрушек, что подтверждает его безопасность.
Изготавливаем брус нулевого сорта (без сучков, премиум-качество).
Длина бруса — стандартная до 12–14 м, по заказу — более длинные элементы.
Ниже описан весь процесс изготовления клееных элементов.
1. Закупка материалов
- Для производства бруса мы используем сосну высокого качества, выращенную в экологически чистых лесах.
- Древесина тщательно отбирается по прочностным характеристикам, влажности и наличию дефектов.
- Для премиального бруса нулевого сорта (без сучков) отбираются исключительно прямые и здоровые стволы, обеспечивая максимальную эстетичность и прочность.
2. Сушка древесины
- Древесина проходит камерную сушку, при которой влажность контролируется до 8–12 % (зависит от требований проекта).
- Сушка проводится по ступенчатой технологии, чтобы минимизировать внутренние напряжения и предотвратить трещинообразование.
- Камерная сушка позволяет достичь стабильного материала, который не деформируется после монтажа.
3. Профилирование бруса
- Высушенные ламели проходят точное профилирование на станках ЧПУ.
- Все ламели подготавливаются к склеиванию с точной геометрией: строго по заданным ширине, высоте и толщине.
- Благодаря высокоточному профилированию, при сборке стен обеспечивается плотное соединение ламелей, что исключает щели и мостики холода.
4. Склеивание (клеение бруса)
- Ламели склеиваются между собой с использованием экологически безопасного клея на основе ПВА или полиуретана, который обеспечивает прочность на изгиб и сдвиг.
- Склейка производится под прессом, который гарантирует равномерное давление по всей длине бруса.
- Этот процесс позволяет создавать брус непрерывной длины до 12–14 м и более, без внутренних дефектов.
5. Шлифовка и финальная обработка
- После склеивания брус проходит точную шлифовку для ровной поверхности и подготовки к окраске или лакировке.
- Шлифовка обеспечивает идеальное прилегание при монтаже и исключает шероховатости на поверхности.
6. Хранение и подготовка к отгрузке
- Брус хранится в сухих, вентилируемых помещениях.
- Перед упаковкой каждый элемент маркируется и проверяется на качество.
- Возможна индивидуальная нарезка по длине и подготовка комплекта для конкретного проекта.
На нашем производстве мы выполняем все технологические операции по подготовке бруса, чтобы обеспечить максимальную точность, удобство монтажа и современный уровень энергоэффективности дома.
1. Сверление каналов для электрики
- Все отверстия для проводки, кабель-каналов, розеток и выключателей просверливаются заранее на производстве.
- Кабели проходят внутри бруса, что обеспечивает чистый интерьер и скрытую проводку, а также защиту от внешних воздействий.
- Возможна прокладка каналов под любое количество розеток, выключателей и светильников. Умный дом.
2. Нарезка чашек и пазов
- Чашки для венцов бруса нарезаются на точных станках ЧПУ.
- Минимальные теплопотери.
- Идеальное прилегание элементов.
3. Угловые соединения бруса. На производстве мы можем выполнять любые угловые соединения, включая:
- Стандартные перерубы (традиционные соединения под 90°).
- Инновационные угловые соединения, такие как:
- Нулевой угол — соединение бруса под 45°, без видимых перерубов и с применением специальных стягивающих шпонок, что полностью исключает продувание и щели;
- Закрытый угол — конструкция, при которой соединяются две стены под 90° с единственным выступающим элементом. Фиксация осуществляется с помощью специальной шпонки, которая плотно стягивает обе стены между собой, обеспечивая максимальная плотность соединения, исключающая продувание.
- Витражный узел. Особое соединение для панорамного остекления без использования обсадных коробок. К стене не требуется дополнительный брус для установки окна, стекло крепится прямо к торцевой стене с помощью стягивающей шпонки.
- повышает светопропускание и визуально расширяет пространство;
- уникальное решение, которое конкуренты обычно реализовать не могут;
- шпонка фиксирует стекло, позволяя ему безопасно «ехать» при усадке дома, без риска деформации или продувания.
Наши клеёные балки и столбы производятся по той же технологии, что и стеновой брус:
- древесина тщательно отбирается;
- проходит камерную сушку до оптимальной влажности;
- профилируется и склеивается ламелями;
- шлифуется и подготавливается для монтажа.
Могут быть как вертикальные опорные элементы для несущих конструкций, так и декоративные элементы интерьера или экстерьера.
- Форма сечения: квадратная или прямоугольная.
- Стандартные размеры: 200×200 мм, 240×240 мм, 320×320 мм.
- Возможны заказные размеры до 800 мм, для любых архитектурных решений.
Преимущества
- Полная совместимость с остальными элементами дома из клеёного бруса.
- Максимальная точность изготовления и легкость монтажа.
- Возможность создания уникальных конструктивных и декоративных решений.
- Высокая несущая способность при любых вариантах сечения.
Подкладная доска под первый венец — это специальный элемент, который укладывается под первый венец стенового бруса и обеспечивает правильное и безопасное соединение с фундаментом.
По сути, это клеёная доска, изготовленная по той же технологии, что и стеновой брус:
- В подкладной доске используются шипы и пазы, идентичные тем, что применяются в стеновом брусе, для плотного соединения венцов между собой.
- Это обеспечивает стабильность первого венца, точность установки и минимизирует зазоры между брусом и фундаментом.
- Подкладная доска обработана антисептическим составом, который защищает древесину и повышает долговечность всего дома.
Между подкладной доской первого венца и фундаментом обязательно прокладывается слой гидроизоляции, который дополнительно защищает древесину от влаги и повышает долговечность дома.
В комплект поставки стенового домокомплекта входят все необходимые комплектующие и фурнитура, обеспечивающие точную и надежную сборку дома. Позволяя собрать дом строго по проекту, без дополнительных доработок на объекте, гарантирует долговечность и стабильность конструкций.
Что входит?
- Стягивающие шпонки и соединительные элементы для угловых и венцовых соединений;
- Крепёжные элементы для фиксации бруса и венцов между собой;
- Элементы для монтажа перекрытий и балок;
- Детали для установки окон и дверей, включая шпонки и специальные монтажные элементы.
Фурнитура
- Используется премиальная фурнитура, устойчивая к коррозии и влаге;
- Все крепежные элементы выполнены из нержавеющей стали или с защитным антикоррозийным покрытием;
- Гарантируют долговечность конструкции и безопасное соединение всех элементов;
- Подбираются индивидуально под каждый проект с учётом нагрузки и типа соединений.
Комплект проектной документации, предназначенный для точной и последовательной сборки кровельной конструкции дома. Он разрабатывается индивидуально под конкретный проект и учитывает все архитектурные и конструктивные особенности здания.
Документация позволяет правильно распределить нагрузки, обеспечить надёжность и долговечность кровли, а также минимизировать ошибки при монтаже.
В зависимости от конкретных задач проекта, расчётных нагрузок и архитектурныхтребований, стропильная система изготавливается из клеёных деревянных балоклибо из специальных двутавровых балок. Выбор типа элементов осуществляется на стадии проектирования и позволяет обеспечить оптимальное сочетание прочности, долговечности, геометрической стабильности и эстетики конструкции.
Применение клеёных или двутавровых элементов обеспечивает высокую точность изготовления, устойчивость к деформациям и надёжность кровельной системы в течение всего срока эксплуатации дома.
Лобная доска — это конструктивный и отделочный элемент кровли, который устанавливается по торцам стропильной системы и формирует аккуратный внешний контур крыши, а также служит основанием для крепления водосточной системы.
В составе дома используется лобнаядоска из клеёной сосны технической сушки нулевого сорта. Материал не содержит сучков и визуальных дефектов, обладает высокой геометрической стабильностью иустойчивостью к растрескиванию и деформациям. Применение клеёной древесины обеспечивает долговечность элемента, эстетичный внешний вид и надёжную эксплуатацию в условиях внешней среды.
В составе дома используются несущие балки и столбы из клеёной сосны технической сушки. Такой материал обладает высокой прочностью, стабильной геометрией и минимальной усадкой, что обеспечивает надёжность конструкции, точность монтажа и долговечность эксплуатации. Клеёная древесина устойчива к растрескиванию и деформациям, что особенно важно для несущих элементов, работающих под постоянной нагрузкой.
Конструктивно-декоративные элементы кровли, предназначенные для защиты торцов стропильной системы и формирования завершённого, аккуратного внешнего вида крыши.
В составе дома применяется планка из клеёной сосны технической сушки. Использование клеёной древесины обеспечивает стабильную геометрию, устойчивость к перепадам влажности и температур, а также снижает рискрастрескивания и деформаций в процессе эксплуатации. Элемент выполняет как защитную, так и эстетическую функцию, повышая долговечность кровельного узла ивнешний вид дома.
Система, обеспечивающая постоянный воздухообмен в подкровельном пространстве и корректную работу кровельного«пирога». Она предотвращает накопление влаги, образование конденсата и перегрев конструкций.
В состав дома входят предусмотренные проектом вентиляционные выходы в кровле, обеспечивающие эффективное удаление влажного воздуха и стабильную циркуляцию. Наличие технической вентиляции позволяет продлить срок службы кровельных и несущих элементов, сохранитьтеплоизоляционные свойства конструкций и обеспечить надёжную эксплуатацию домав течение всего срока службы.
Несущие элементы конструкции, предназначенные для восприятия нагрузок от полов, перегородок и эксплуатационных нагрузок, а также для передачи их на стены и опорные элементы дома.
В составе дома применяются лаги и балки из клеёной сосны технической сушки. Такой материал обеспечивает высокую прочность, точную геометрию и минимальные деформации в процессе эксплуатации. Использование клеёной древесины позволяет увеличить пролёты, повысить жёсткость перекрытий и обеспечить комфортную, надёжную и долговечную конструкцию межэтажных перекрытий.
Элементы кровельной конструкции, предназначенные для формирования вентиляционного зазора и надёжного основания под укладку кровельного покрытия.
В составе дома обрешётка и контробрешётка выполняются из клеёной сосны технической сушки. Применение клеёной древесины обеспечивает стабильную геометрию элементов, точность монтажа и устойчивость к деформациям при перепадах влажности и температур. Контробрешётка обеспечивает правильную вентиляцию подкровельного пространства, а обрешётка равномерно распределяет нагрузки от кровельного покрытия, повышая надёжность и долговечность кровельной системы.
Комплекс элементов, предназначенный для организованного отвода дождевых и талых вод с поверхности кровли и защиты фасадов, цоколя и фундамента дома от избыточного увлажнения.
В состав дома входит водосточная система, подобранная с учётом конфигурации кровли и расчётных объёмов осадков. Она обеспечивает эффективный сбор и отвод воды, снижает риск образования подтёков, наледи и преждевременного износа конструкций, а также способствует сохранению внешнего вида и долговечности здания.
Верхний слой кровельной конструкции, который обеспечивает защиту дома от атмосферных осадков, ветра и перепадов температуры, а также придаёт зданию завершённый эстетический вид.
Вариант финишного покрытия подбирается и утверждается совместно с заказчиком, с учётом конструкции кровли, архитектурного стиля дома, долговечности материалов и эксплуатационных требований. В стандартной комплектации для плоских кровель используется наплавляемая кровля Технониколь, а для скатных кровель — металлочерепица. Использование качественного покрытия гарантирует надёжность кровли, предотвращает протечки и сохраняет привлекательный внешний вид здания на долгие годы.
Защитный слой, устанавливаемый вкровельном «пироге» между стропилами и финишным покрытием. Она обеспечивает вывод влаги из утеплителя наружу, одновременно предотвращая попадание воды и снега внутрь конструкции.
Применение диффузионной мембраны защищает деревянные элементы кровли от гниения и плесени, продлевает срок службы утеплителя и всей кровельной системы, а также способствует поддержанию комфортного микроклимата в доме.
Конструктивный элемент кровли, предназначенный для предотвращения схода снега с крыши на территории вокруг дома, что обеспечивает безопасность людей и сохранность наружных элементов иоборудования.
Для скатных кровель в состав домавходит специально подобранная система снегозадержания, рассчитанная на климатические условия региона и конфигурацию крыши. Элементы системы удерживают снег на кровле до его безопасного таяния, уменьшают нагрузку на нижележащие конструкции и способствуют долговечности и надёжности кровельного покрытия.
В стоимость дома включён полный набор необходимых комплектующих для монтажа кровли. Это все элементы, обеспечивающие надёжную и безопасную сборку, установку финишного покрытия, крепление стропильной системы, вентиляционных и водосточных элементов.
Клиенту не требуется приобретать дополнительные материалы или аксессуары — весь перечень комплектующих уже включён в стандартную комплектацию дома, что упрощает процесс строительства и гарантирует корректный монтаж кровельной системы.
Защитный слой, устанавливаемый на внутренней стороне кровельного и межэтажного перекрытий, который предотвращает проникновение водяного пара из помещений в конструктивные элементы дома.
Использование пароизоляционной пленки защищает утеплитель и деревянные элементы от влаги, предотвращает образование конденсата и плесени, повышает энергоэффективность дома и продлевает срок службы кровельной и стеновой конструкции.
Конструктивный слой перекрытий или кровли, который служит основой для укладки финишного покрытия, пола или других отделочных материалов.
Выбор конкретного материала определяется проектными требованиями и типом конструкции. Использование плит ЦСП или OSB обеспечивает жёсткость и прочность основания, равномерное распределение нагрузок, устойчивость к деформациям и надёжную фиксацию последующих слоёв покрытия, гарантируя долговечность и эксплуатационную безопасность конструкции.
Элементы, используемые для соединения несущих и вспомогательных элементов дома, обеспечивающие надёжность и устойчивость всей конструкции.
Мы используем только качественны йонструкционный крепёж с антикоррозийным покрытием. Это гарантирует долговечность соединений, защиту от коррозии и стабильность конструкции на протяжении всего срока эксплуатации дома, исключая необходимость дополнительных укреплений или замены крепежа в будущем.
В наших проектах возможно использование различных типов окон и дверей, в зависимости от пожеланий заказчика и архитектурного решения дома. Все варианты соответствуют высоким требованиям по качеству, энергоэффективности и долговечности.
• Деревянные окна премиум-класса
Это продукт собственного производства. Окна из клеёной сосны, профиль 108 мм, радиального распила, обработанные немецкими лакокрасочными составами Remmers, обладают высокой прочностью и долговечностью. Наши деревянные окна могут монтироваться без обсадных коробок и фактически выполнять функцию несущей конструкции, способны нести нагрузки, а их длина может достигать до 12 метров. Мы рекомендуем устанавливать именно деревянные окна в доме из дерева, так как они лучше всего сочетаются по прочности, усадке и внешнему виду с деревянной конструкцией здания.
• Алюминиевые окна
Современные окна с рамой из алюминия.
• Пластиковые окна
Окна срамой из ПВХ (пластика).
В наших домах используются энергосберегающие многофункциональные стеклопакеты, которые устанавливаются во все виды окон.
Такие стеклопакеты обеспечивают сохранение тепла внутри дома, снижение теплопотерь и повышают энергоэффективность здания. Они включают несколько стекол с особыми покрытиями и заполнением инертным газом, что позволяет регулировать теплопередачу и обеспечивать комфортный микроклимат в помещении.
В стоимость дома включены качественные входные двери, изготовленные с учётом архитектурного стиля и конструктивных особенностей здания.
Двери могут быть деревянные, алюминиевые или пластиковые (по согласованию). По согласованию с заказчиком также возможно установить любые другие варианты дверей, соответствующие дизайну и техническим требованиям дома. Все входные двери обеспечивают надёжную защиту, долговечность и гармонично сочетаются с фасадом и интерьером здания.
В стоимость дома включены все комплектующие и фурнитура согласно проекту. Это все открывающиеся элементы окон и дверей, раздвижные системы, дверные ручки, элементы замков и другие аксессуары.
Используется фурнитура европейских брендов, таких как Roto, что гарантирует долговечность, надёжность и корректную работу всех механизмов в течение всего срока эксплуатации дома.
Обсадные коробки изготавливаются из клеёной сосны технической сушки, что гарантирует точную геометрию, прочность и надёжность конструкции окон и дверей. Все элементы входят в стандартную комплектацию дома и не требуют дополнительной обработки на объекте.
Комплекс работ по установке и соединению всех элементов стенового комплекта дома на фундаменте. Включает точную укладку венцов, закрепление несущих элементов, обработку узлов соединений и контроль вертикальности и геометрии конструкции.
Все расходные материалы, крепёж, фурнитура и инструменты уже включены в стоимость и не требуют дополнительных затрат со стороны заказчика. Все работы выполняются опытными монтажными бригадами с соблюдением технологических требований и стандартов качества. Сборка сруба входит в стоимость дома и не требует привлечения дополнительных подрядчиков.
Установка окон и дверей включает монтаж всех выбранных конструкций согласно проекту, обеспечение герметичности, правильной работы открывающихся элементов и точного выравнивания по уровню.
Все расходные материалы, крепёж, фурнитура и инструменты уже включены в стоимость и не требуют дополнительных затрат со стороны заказчика. Работы выполняются профессиональными бригадами, что гарантирует долговечность, корректное функционирование и точное соответствие проектным решениям.
Монтаж включает установку всех элементов кровельной конструкции: стропильной системы, обрешётки и контробрешётки, лобной и фронтонной доски, финишного покрытия (вариант которого согласован с заказчиком), водосточной системы, снегозадержания, вентиляционных выходов и других комплектующих.
Все расходные материалы, крепёж, фурнитура и инструменты уже включены в стоимость и не требуют дополнительных затрат со стороны заказчика. Работы выполняются профессиональными монтажными бригадами с соблюдением технологических стандартов, что обеспечивает надёжность, долговечность и точное соответствие проектным решениям.
Обработка торцов бруса включает нанесение защитных составов Remmers на все открытые торцы стенового комплекта для предотвращения проникновения влаги, растрескивания и повышения долговечности древесины.
Все расходные материалы, кисти, инструменты и составы уже включены в стоимость и не требуют дополнительных затрат со стороны заказчика. Работы выполняются профессиональными бригадами с соблюдением технологических стандартов, что обеспечивает максимальную защиту древесины и долгий срок службы конструкции.
Разгрузочные работы включают приём, перемещение и размещение всех элементов стенового комплекта, кровли, окон, дверей и других комплектующих на строительной площадке.
Все расходные материалы, крепёж, фурнитура, инструменты и укрывной материал для временного хранения уже включены в стоимость и не требуют дополнительных затрат со стороны заказчика.
От заказчика требуется подготовка площадки для хранения материала, наличие поддонов и организация подъездных путей. Размеры площадки и количество поддонов согласовываются заранее. По согласованию с заказчиком мы можем полностью взять на себя эти работы.
Единственным дополнительным расходом является работа техники (кран), которая оплачивается по факту выполнения. Это связано с тем, что заранее невозможно точно определить территориальное расположение участка и тарифы аренды техники, а также сложность участка (например, лесной участок), что может существенно влиять на время и стоимость работы крана.
Авторский надзор включает контроль за соответствием выполнения всех строительных работ проектной документации, технологическим требованиям и стандартам качества, выполняемых нашей компанией.
Все расходные материалы, инструменты и оборудование, необходимые для проведения надзора, уже включены в стоимость и не требуют дополнительных затрат со стороны заказчика. Мы осуществляем проверку монтажа сруба, установки кровли, окон, дверей и других элементов, гарантируя точное соблюдение проекта и высокое качество строительства.
Важно отметить, что контроль не распространяется на работы сторонних исполнителей, привлечённых заказчиком, и мы не несем ответственность за их качество и не консультируем по их выполнению.
В рамках строительства предоставляются регулярные отчёты и сверки по выполненным работам, срокам строительства и дальнейшим планам. Это позволяет заказчику отслеживать прогресс строительства и соответствие выполненных работ проектной документации.
Для удобства заказчика на объекте организовано видеонаблюдение с удалённым доступом, что позволяет в любой момент контролировать ход строительства и видеть рабочий процесс онлайн.
Почему выбирают NUMO HOUSE
Вы можете лично увидеть как готовые дома NUMO, так и строительство от первых этапов до готового результата. Своими глазами.
Мы берём на себя полную ответственность за дом — от производства до сдачи, обеспечивая надёжный результат и спокойствие клиента.
Реализованные объекты в СНГ и по всему миру подтверждают стабильность и масштаб нашей работы.
Более 15 лет мы проектируем и строим дома из дерева, объединяя традиции качества с современными технологиями и премиальными стандартами.
Мы берём на себя весь процесс — от проекта до отделки. Работаем прозрачно: без лишних подрядчиков, скрытых платежей и непредсказуемых расходов.
Вы видите каждый шаг на всех этапах строительства — от видеонаблюдения до фотоотчётов и выездов инженера. Камеры на объекте дают возможность следить за строительством вашего дома из любой точки мира.
Наши клиенты выбирают эти модели
Есть идеи?
Адаптируем проект под вас.
Беларусь, Минск
пр. Независимости 117а
























.jpg)
.jpg)
